Kopfzeile

Freundliche Wohnung mit Südbalkon

Wohnung zum Kauf in Mödling (2340) / Objektnummer: 400177

Wohnung zum Kauf in Mödling (2340) 426.000 €

3 Zimmer

1 Badezimmer

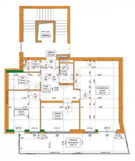
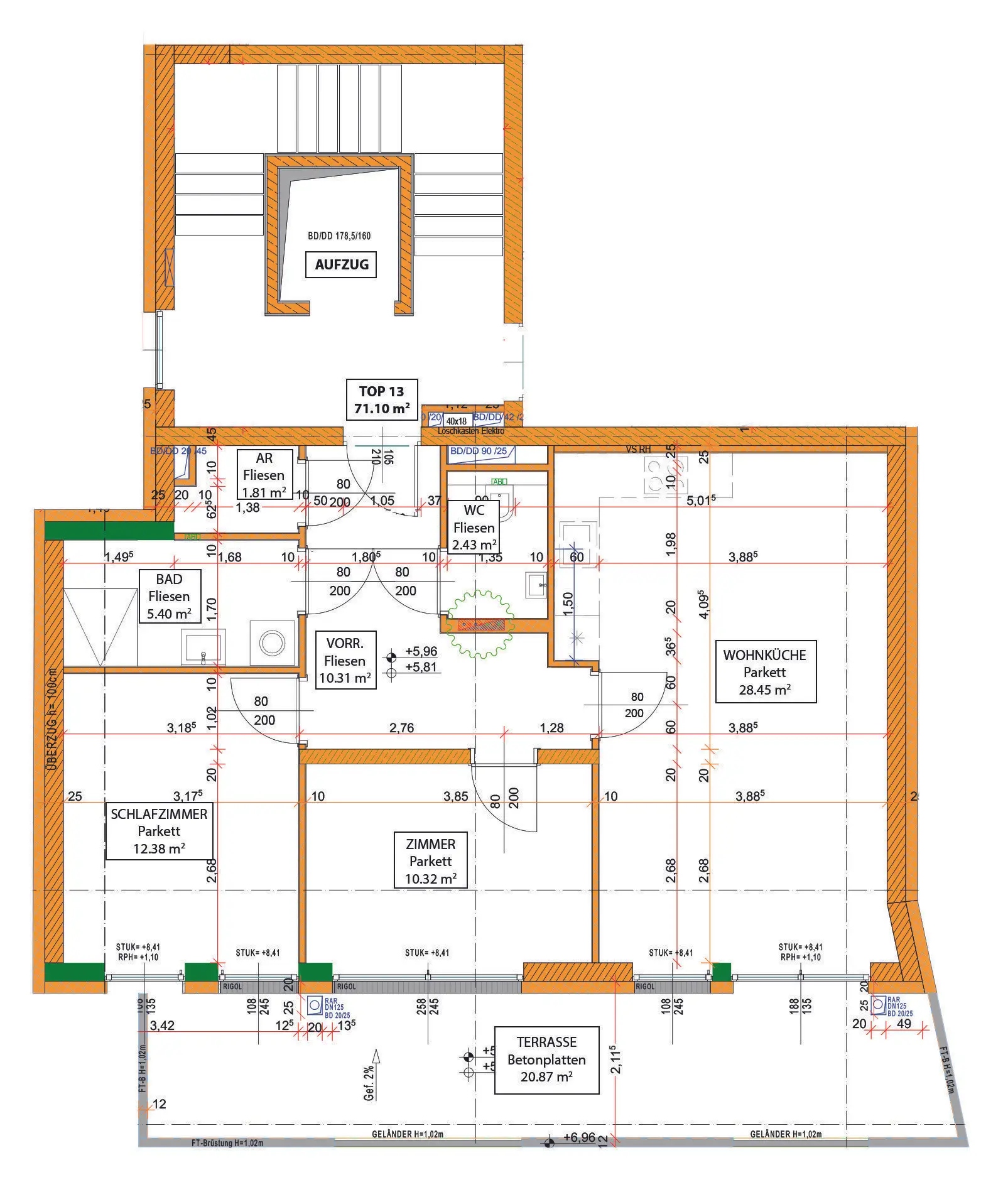
71 m² Wohnfläche

AufzugBalkonDuscheFahrradraumFußbodenheizungKellerflächeFliesenParkett
Diese neuwertige 3-Zimmer-Etagenwohnung in Mödling überzeugt mit moderner Architektur, durchdachtem Grundriss und hochwertiger Ausstattung in einem erst 2018 errichteten Wohnhaus mit insgesamt 4 Geschoßen. Auf rund 71 m² Wohnfläche bietet die Immobilie ein angenehmes Wohngefühl für Paare, kleine Familien oder anspruchsvolle Singles, die die Nähe zu Wien mit hoher Lebensqualität im Bezirk Mödling verbinden möchten.

Der helle Wohnbereich mit 28,45 m2 bildet das Herzstück der Wohnung und bietet direkten Zugang zum südseitig ausgerichteten ca 21 m2 großen Balkon – ideal für sonnige Stunden, ein Frühstück im Freien oder entspannte Abende. Zwei getrennt begehbare Schlafzimmer , 12,38 m2 und 10,32 m2, ermöglichen vielseitige Nutzungsmöglichkeiten, etwa als Kinderzimmer, Homeoffice oder Gästezimmer.

Die Ausstattung unterstreicht den neuwertigen Charakter: In den Wohnräumen sorgt Parkett für eine warme Atmosphäre, während Fliesen in den Nass- und Funktionsbereichen pflegeleichte Alltagstauglichkeit bieten. Ein Badezimmer rundet das stimmige Raumangebot ab.

Diese Wohnung vereint zeitgemäßen Wohnkomfort, eine attraktive Lage in Mödling und die Vorteile eines jungen Baujahrs – eine hervorragende Gelegenheit für Eigennutzer/innen ebenso wie für Anleger/innen.

Ausstattung

Ein Tiefgaragenstellplatz kann um 22.000,- angekauft werden. - Dusche - Fliesenboden - Parkettboden - Balkon - Fußbodenheizung - Fernwärmeheizung - elektrische Aussenrollo - Personenaufzug - Fahrradabstellraum

Lage und Verkehrsanbindung

- Gelegen im charmanten Mödling, einer der begehrtesten Wohngegenden in der Nähe von Wien - Ruhige Lage mit unmittelbarer Nähe zu malerischen Grünflächen und Erholungsgebieten - Hervorragende Anbindung an öffentliche Verkehrsmittel für bequeme Pendelwege in die Hauptstadt - Vielfältige Einkaufsmöglichkeiten und Geschäfte des täglichen Bedarfs in der Umgebung - Reiches kulturelles Angebot und historische Sehenswürdigkeiten in der näheren Umgebung - Familienfreundliche Infrastruktur mit Kindergärten und Schulen in der Nähe - Zahlreiche Freizeitmöglichkeiten wie Wanderwege und Sporteinrichtungen in der Umgebung

Grundriss

Lageplan

Inhalt wird geladen
Preise
Kaufpreis
426.000,00 €
Betriebskosten netto
182,42 €
Betriebskosten brutto
200,66 €
Sonstige
70,24 €
Sonstige Ust.
3,05 €
Provision
3% vom Kaufpreis zuzüglich 20% USt.
Fakten
Objekttyp
Wohnung
Wohnfläche
71 m²
Kellerfläche
2 m²
Toiletten
1
Balkone
1
Baujahr
2018
Zustand
neuwertig
Status
verfügbar
Kerstin Schratt

Friends Immobilien GmbH

Kerstin Schratt

Immobilienberaterin