Kopfzeile

Erstbezug - Einfamilienhaus

Haus zum Kauf in Oberwaltersdorf (2522) / Objektnummer: 400060

Haus zum Kauf in Oberwaltersdorf (2522) 732.000 €

5 Zimmer

2 Badezimmer

125 m² Wohnfläche

85 m² Außenfläche

175 m² Grundfläche

Gehobene QualitätbarrierefreiTerrasseDuscheBadewanneGäste-WCklimatisiertFußbodenheizungGartenflächeFliesenKabel-TV
GRUNDBUCH STATT FALLENDE AKTIEN
Anlageobjekt mit Lebensqualität der Extraklasse

netto Kaufpreis Euro 610.000,-- + 20 % UST

In besonders attraktiver Lage für Einfamilienhäuser entstehen vier hochwertig geplante und vom österreichischen Baumeister errichtete Einfamilienhäuser.
Die Häuser sind in angenehmem Abstand zur Tattendorfer Straße situiert und liegen ruhig im begrünten Bereich des Grundstücks. Die vorgelagerten Stellplätze mit Carports schaffen zusätzliche Distanz zur Straße und sorgen für eine angenehme Wohnatmosphäre.
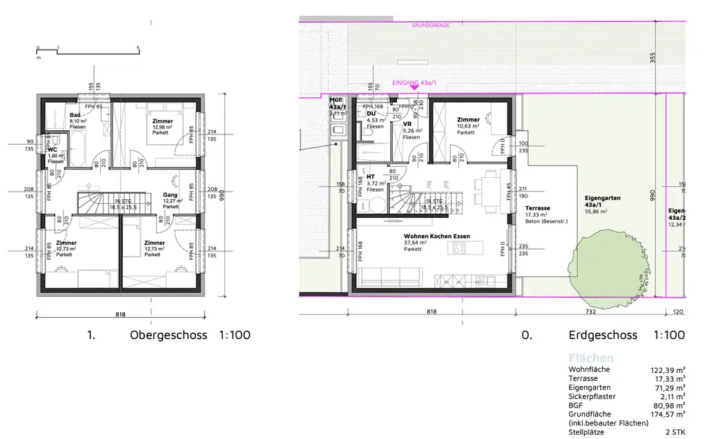
Die vier einzigartigen, schlüsselfertigen Einfamilienhäuser erstrecken sich über zwei Etagen (Erdgeschoss und Obergeschoss) und bieten eine durchdachte Raumaufteilung mit insgesamt fünf Zimmern.
Bereits beim Betreten des Hauses empfängt Sie ein großzügiger Vorraum, von dem aus der Wohnbereich, ein Badezimmer mit Dusche und WC, der Technikraum sowie die Treppe ins Obergeschoss erreichbar sind.
Der offen gestaltete Wohnbereich im Erdgeschoss bildet das Herzstück des Hauses. Die moderne Küche geht fließend in den Essbereich über und bietet zusätzlich eine gemütliche Sitzgelegenheit am großzügigen Sitzfenster. Der angrenzende Wohnbereich lädt zum Entspannen ein. Über eine große Hebe-Schiebetüre gelangt man direkt auf die Terrasse sowie in den eigenen Garten und erweitert so den Wohnraum ins Freie.
Ebenfalls im Erdgeschoss befindet sich ein zusätzliches Zimmer, das sich ideal als Büro, Gästezimmer oder weiteres Kinderzimmer nutzen lässt.
Über die Treppe erreicht man das Obergeschoss, wo sich drei weitere Zimmer befinden. Das großzügige Badezimmer ist mit Badewanne und Dusche ausgestattet, zusätzlich steht ein separates WC zur Verfügung.
Zu jedem Haus gehören zwei KFZ-Stellplätze, wobei einer der Stellplätze als Carport ausgeführt ist.

Ausstattung

Ausstattungshighlights: •Ziegelmassivbauweise vom österreichischem Baumeister errichtet •Jeder Raum ist klimatisiert •Die Beheizung erfolgt über eine Luftwasserwärmepumpe Fußbodenheizung •Hochwertiger österreichischer Dielen- Echtholzparkett in Eiche •Großformatige Fliesen im WC & Bad •Elektrisch betriebener Sonnenschutz mit Raffstore und Außenjalousien •PV-Anlage •Zwei Stellplätze pro Einheit

Lage und Verkehrsanbindung

Die perfekte Erreichbarkeit von Oberwaltersdorf durch die nur 20km entfernte Bundeshauptstadt machen die Lage auch für Pendler sehr attraktiv. Auch ohne Auto geht’s öffentlich in rd. 50 Minuten bis zum Hauptbahnhof Wien. Auch bietet Oberwaltersdorf eine alles umfassende Infrastruktur: Einkaufsmöglichkeiten, Schulen, und Restaurants sind in der Nähe und bequem zu erreichen. Die Erholungs- und Freizeitmöglichkeiten sind einzigartig, es lässt sich die Freizeit in vollen Zügen genießen – sei es bei einem Spaziergang an der angrenzenden Triesting oder bei sportlichen Aktivitäten wie Radfahren, Joggen, Fußball oder Golfspielen am nahegelegenen Golfplatz Fontana. Für die Kinder gibt es mehrere Schulen, Kindergärten sowie natürlich die erforderlichen medizinische Einrichtungen.

Entfernungen

Gaststätte
670 m
Einkaufsmöglichkeit
5,84 km
Autobahn
3,32 km
Bus
400 m
Fernbahnhof
650 m
Kindergarten
480 m
Volksschule
750 m
Realgymnasium
750 m
Gymnasium
7,01 km

Grundrisse

Lageplan

Inhalt wird geladen
Preise
Kaufpreis
732.000,00 €
Fakten
Objekttyp
Haus
Wohnfläche
125 m²
Gartenfläche
73 m²
Grundfläche
175 m²
Toiletten
2
Terrassen
1
Baujahr
2026
Zustand
Erstbezug
Status
verfügbar
Peter Reiter

Friends Immobilien GmbH

Peter Reiter

Geschäftsführer / staatlich geprüfter Immobilienmakler