Kopfzeile

Erdgeschoß-Wohnung mit Loggia inkl. TG-Stellplatz

Wohnung zum Kauf in Wien, Liesing / Wien 23., Liesing (1230) / Objektnummer: 400205

Wohnung zum Kauf in Wien, Liesing / Wien 23., Liesing (1230) 285.000 €

1 Schlafzimmer

1 Badezimmer

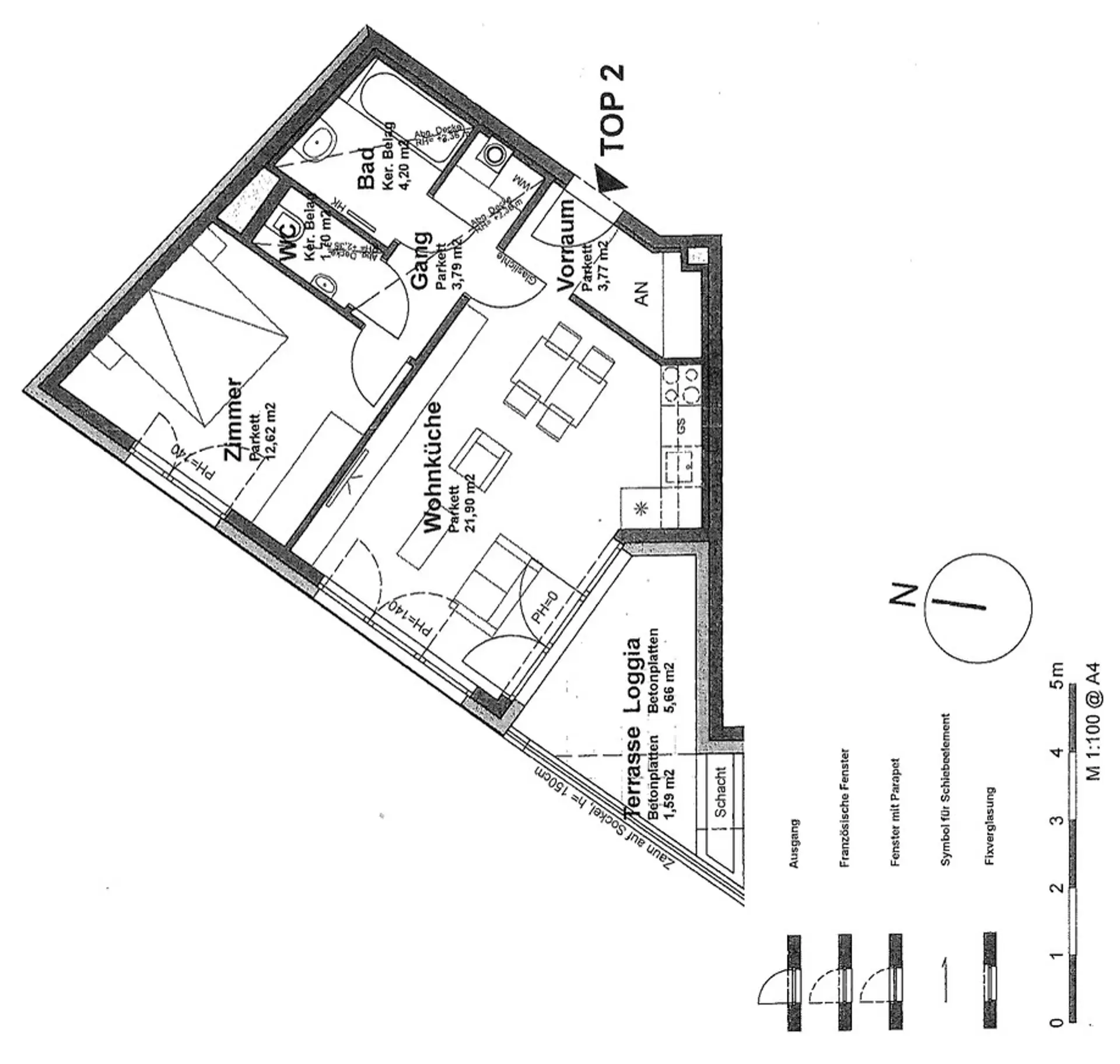
48 m² Wohnfläche

53 m² Nutzfläche

2 m² Außenfläche

AufzugLoggiaWohnkücheBadewanneklimatisiertTiefgarageStellplatzZentralheizungFußbodenheizungKellerflächeFliesenKabel-TV
Zum Kauf angeboten wird diese charmante Erdgeschosswohnung in einem gepflegten Zustand im Herzen von Wien, Liesing. Errichtet im Jahr 2016, präsentiert sich die Wohnung mit einer Wohnfläche von 48 m² und einer gesamten Nutzfläche von 53 m² als idealer Ort für Singles oder Paare, die ein modernes Zuhause suchen.

Die Immobilie besticht durch ihre gut durchdachte Raumaufteilung. Das helle Schlafzimmer hat eine Größe von 12,60 m2, während das gepflegte Badezimmer mit Wanneden Ansprüchen des Alltags gerecht wird. Der Wohnbereich 22 m2 überzeugt durch eine offene Küche, die harmonisch in den Raum integriert ist und zum gemeinsamen Kochen und Verweilen einlädt.

Besonders hervorzuheben ist die Klimaanlage, im Wohnzimmer, die an heißen Tagen für angenehme Temperaturen sorgt und so das Wohnklima nochmals optimiert.

Diese Wohnung liegt in einem vierstöckigen Gebäude und bietet Ihnen die Möglichkeit diese auch als Praxis zu nutzen. Nutzen Sie die Gelegenheit und vereinbaren Sie noch heute einen Besichtigungstermin, um diese besondere Immobilie näher kennenzulernen.

Ausstattung

- Badewanne - Offene Küche - Fertigparkett , Fliesen - Kabel-/Sat-TV - Klimatisierung - 1 Tiefgaragenstellplatz - Fußbodenheizung - Gasbefeuerung Reparaturrücklage: € 29.600,- Stand 31.12.2024

Lage und Verkehrsanbindung

Die Erdgeschosswohnung befindet sich im 23. Wiener Gemeindebezirk Liesing in einem gewachsenen, überwiegend wohngeprägten Umfeld. Die Nahversorgung ist gut, alltägliche Wege sind kurz, und die Wohnatmosphäre ist insgesamt ruhig. Das Stadtzentrum liegt rund 10,7 km entfernt und ist je nach Verkehrsaufkommen mit Pkw oder öffentlichen Verkehrsmitteln gut erreichbar. Einkaufsmöglichkeiten des täglichen Bedarfs befinden sich in etwa 0,5 km Distanz. Eine Bushaltestelle liegt nahezu vor der Haustüre (ca. 0,11 km); zur nächstgelegenen U-Bahn-Station sind es rund 2,1 km. Die Autobahn erreicht man in ca. 2,0 km. Kindergarten und Volksschule sind sehr nahe gelegen. Gymnasium: ca. 2,1 km.

Entfernungen

Zentrum
10,66 km
Einkaufsmöglichkeit
500 m
Autobahn
1,96 km
Bus
110 m
Fernbahnhof
200 m
U-Bahn / S-Bahn
2,12 km
Kindergarten
30 m
Volksschule
120 m
Hauptschule
6,6 km
Gymnasium
2,14 km

Grundrisse

Lageplan

Inhalt wird geladen
Preise
Kaufpreis
285.000,00 €
Betriebskosten netto
72,98 €
Betriebskosten brutto
80,28 €
Heizkosten netto
66,94 €
Heizkosten brutto
76,85 €
Sonstige
121,92 €
Sonstige Ust.
7,25 €
Provision
3% vom Kaufpreis + 20% USt
Fakten
Objekttyp
Wohnung
Wohnfläche
48 m²
Kellerfläche
3 m²
Nutzfläche
53 m²
Toiletten
1
Loggias
1
Baujahr
2016
Status
verfügbar
Kerstin Schratt

Friends Immobilien GmbH

Kerstin Schratt

Immobilienberaterin