Kopfzeile

Dachgeschoß mit 3 Zimmer und 2 Terrassen!

Wohnung zum Kauf in Mödling (2340) / Objektnummer: 400024_2

Wohnung zum Kauf in Mödling (2340) 539.000 €

3 Zimmer

1 Badezimmer

89 m² Wohnfläche

108 m² Nutzfläche

37 m² Außenfläche

AufzugTerrasseWohnkücheDuscheFußbodenheizungKellerflächeFliesenParkettDachgeschossKabel-TV
Zum Kauf steht eine einmalige Dachgeschosswohnung im charmanten Mödling, einer idyllischen Gemeinde nahe Wien. Diese neuwertige Immobilie, errichtet im Jahr 2018 in massiver Bauweise, bietet auf 89 m² Wohnfläche und einer gesamten Nutzfläche von 108 m² modernen Wohnkomfort auf höchstem Niveau.

Die Wohnung erstreckt sich über 3 großzügig geschnittene Räume und vereint eine offene Küche mit hochwertigen Materialien, wie Fliesen- und Parkettböden, zu einem ansprechenden Wohnkonzept. Die helle und freundliche Atmosphäre wird durch eine Terrasse ergänzt, die sowohl nach Norden als auch nach Süden ausgerichtet ist, und somit ganztägig Sonne und Entspannung im Freien bietet.

Als Teil eines vierstöckigen Wohnhauses verspricht diese Dachgeschosswohnung nicht nur beeindruckende Ausblicke, sondern auch eine einzigartige Rückzugsoase mit einem detailliert durchdachten Raumkonzept, das sowohl Funktionalität als auch ästhetische Ansprüche bedient. Die exzellente Lage in Mödling verbindet ruhiges Wohnen mit der Nähe zu urbaner Infrastruktur und macht diese Immobilie zu einem idealen Zuhause für anspruchsvolle Käufer, die Wert auf Qualität und Komfort legen.

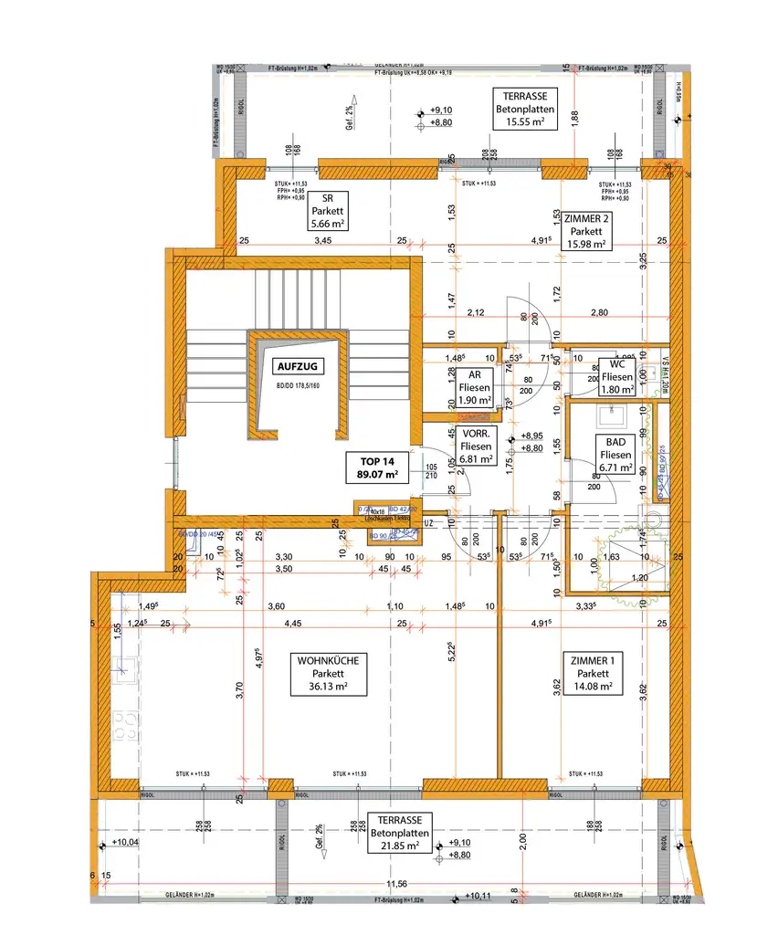
Raumaufteilung:
Vorraum 3,44 m², Bad mit Dusche  6,71 m², Wohnküche 36,13 m², Schlafzimmer 14,08 m², Schlafzimmer 15,98 m² mit Schrankraum 5,66 m², Abstellraum 1,90 m², separates WC  1,80 m²

Ausstattung:
Kellerabteil, Fußbodenheizung, Parkettboden & Fliesen, voll ausgestattete Sanitärräume, Vorsatzrolladen, Lift, 

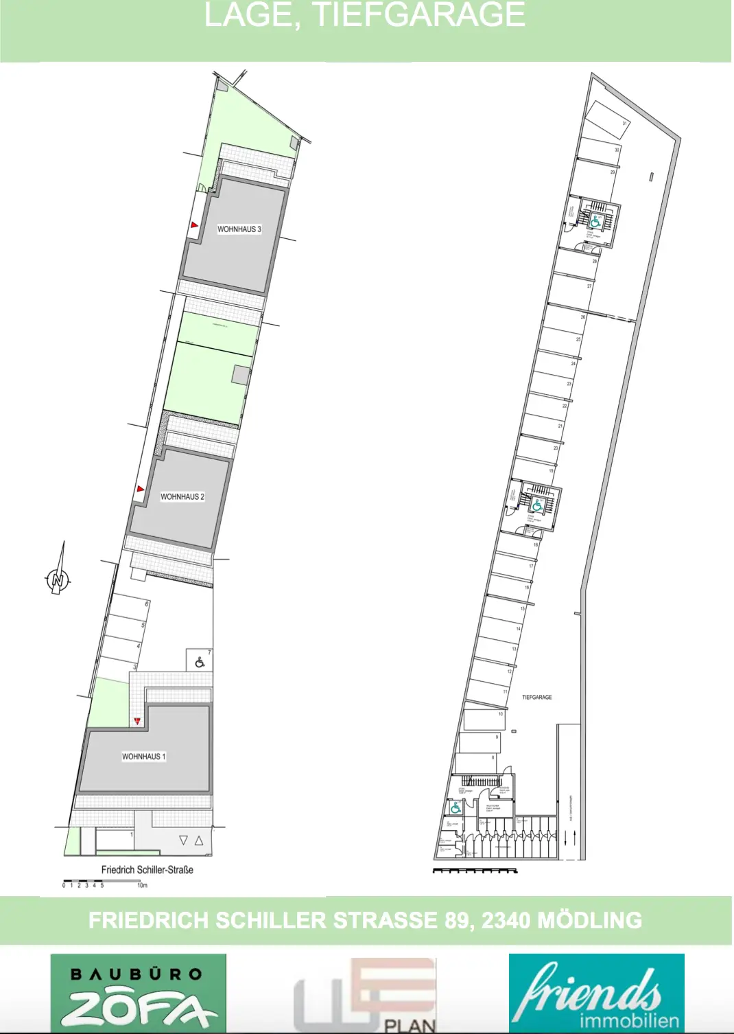
Parkplätze und Tiefgarage ( € 22.000,-) sind vorhanden und können dazu gekauft werden.

Ausstattung

Diese beeindruckende Immobilie bietet eine Ausstattung, die sowohl Stil als auch Funktionalität vereint. Das Badezimmer ist mit einer modernen Dusche ausgestattet, während die offene Küche ein einladendes Ambiente für kulinarische Erlebnisse schafft. Die Böden sind geschmackvoll mit Fliesen und hochwertigem Parkett gestaltet, was zu einer eleganten Wohnatmosphäre beiträgt. Die Beheizung erfolgt über eine energieeffiziente Fußbodenheizung mit Fernwärme, die sowohl Komfort als auch Nachhaltigkeit gewährleistet. Für Unterhaltung sorgt der vorhandene Kabel-Satelliten-TV-Anschluss. Entspannung im Freien ermöglicht die großzügige Terrasse, die zusätzlichen Wohnraum im Freien bietet. Diese Immobilie beeindruckt durch ihre durchdachte Ausstattung und zeitgemäßen Annehmlichkeiten, die höchsten Wohnansprüchen gerecht werden.

Grundrisse

Lageplan

Inhalt wird geladen
Preise
Kaufpreis
539.000,00 €
Betriebskosten netto
284,48 €
Betriebskosten brutto
312,93 €
Sonstige
86,04 €
Sonstige Ust.
3,05 €
Provision
3% des Kaufpreises zzgl. 20 % USt.
Fakten
Objekttyp
Wohnung
Wohnfläche
89 m²
Kellerfläche
2 m²
Teilbar ab
108 m²
Nutzfläche
108 m²
Toiletten
1
Terrassen
2
Baujahr
2018
Zustand
neuwertig
Status
verfügbar
Kerstin Schratt

Friends Immobilien GmbH

Kerstin Schratt

Immobilienberaterin