Kopfzeile

Charmante 2-Zimmer Wohnung in Floridsdorf!

Wohnung zum Kauf in Wien (1210) / Objektnummer: 400186

Wohnung zum Kauf in Wien (1210) 295.000 €

2 Zimmer

1 Badezimmer

50 m² Wohnfläche

BalkonFahrradraumFußbodenheizungKellerflächeFliesenParkett
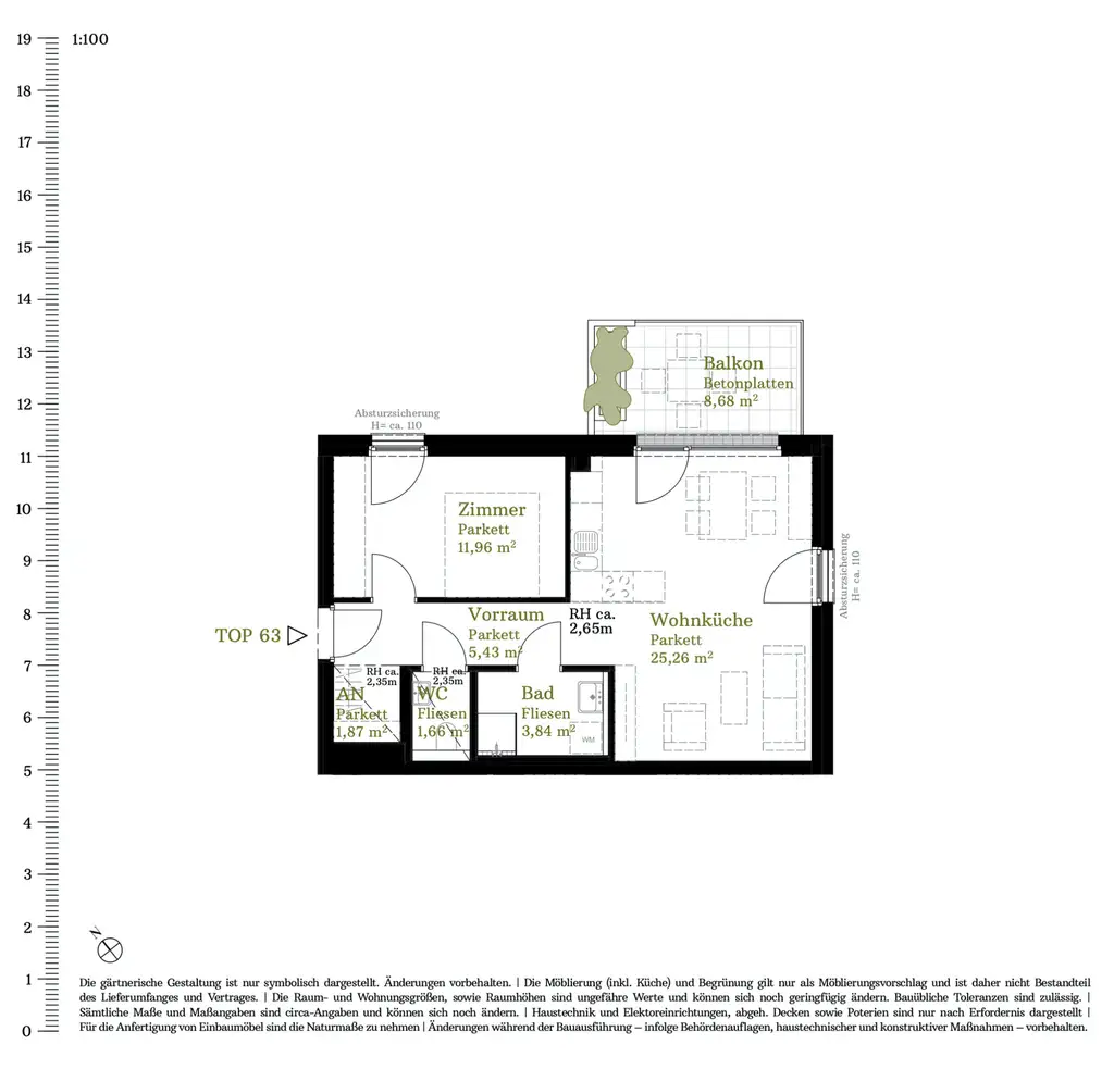
Zum Verkauf gelangt eine moderne und gut geschnittene 2-Zimmer-Wohnung im 21. Wiener Gemeindebezirk (Floridsdorf) mit einer Wohnfläche von ca. 50 m² sowie einem Balkon mit 8,68 m².

Ein Tiefgaragenstellplatz ist im Kaufpreis bereits inkludiert.

Die Wohnung überzeugt durch ihre funktionale Raumaufteilung, hochwertige Ausstattung und ein angenehmes Wohngefühl.

Raumaufteilung:
- Wohn-/Essbereich mit integrierter Küche
- Schlafzimmer
- Badezimmer
- Separates WC
- Abstellraum
- Balkon (ca. 8,68 m²)

Ausstattung & Highlights:
- Fußbodenheizung in allen Räumen
- Parkettböden in den Wohnbereichen
- Qualitativ hochwertige Einbauküche
- Hochwertige Keramikfliesen in Bad und WC
- Badezimmer mit Badewanne, bodenebener Dusche und Handtuchtrockner
- Sicherheitseingangstüre mit einbruchhemmendem Beschlag
- Gegensprechanlage
- SAT-Anlage
- Innenliegender Sonnenschutz in den Obergeschoßen
- Bepflanzte, automatisch bewässerte Blumentröge auf den Balkonen

Die Wohnung ist derzeit bis November 2026 vermietet.
Die aktuelle Netto-Miete beträgt € 654,38 pro Monat, inklusive Tiefgaragenstellplatz.

Allgemeinflächen:
- Fahrradabstellraum im Erdgeschoss
- Kinderwagenabstellräume in jedem Obergeschoss
- Liftanlage
- Gemeinschaftliche Waschküche mit Waschmaschine und Trockner
- Dachterrasse im 3. Obergeschoss mit Gemeinschaftsraum
- Fitnessraum
- Quartierübergreifende Co-Working-Station im Erdgeschoss

Lage & Verkehrsanbindung:
Zahlreiche Freizeit- und Erholungsmöglichkeiten, Kindergärten in unmittelbarer Nähe sowie eine sehr gute öffentliche Verkehrsanbindung sorgen für hohe Lebensqualität.

Öffentliche Verkehrsmittel:
S-Bahn: Wien Siemensstraße
Buslinien: 28A, 29A, 31A

Grundriss

Lageplan

Inhalt wird geladen
Preise
Kaufpreis
295.000,00 €
Gesamtmiete
81,08 €
Betriebskosten netto
73,71 €
Betriebskosten brutto
81,08 €
Provision
3% des Kaufpreises zzgl. 20% USt
Fakten
Objekttyp
Wohnung
Wohnfläche
50 m²
Kellerfläche
3 m²
Toiletten
1
Balkone
1
Status
verfügbar
Daniel Sabani

Friends Immobilien GmbH

Daniel Sabani

Staatlich geprüfter Immobilienmakler