Kopfzeile

Bewilligtes Bauprojekt mit 4 Häusern

Grundstück zum Kauf in Vösendorf (2331) / Objektnummer: 400118

Grundstück zum Kauf in Vösendorf (2331) 650.000 €

763 m² Grundfläche

Bewilligtes Bauprojekt mit 4 modernen Häusern



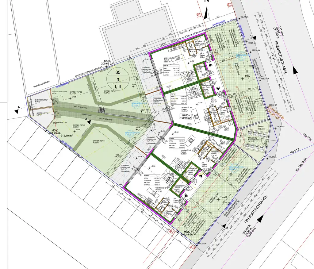
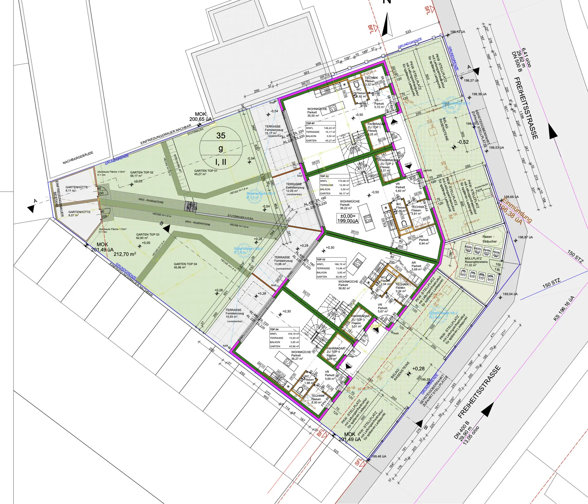
Zum Verkauf gelangt ein 763 m2 großes Baugrundstück mit genehmigter Baubewilligung für 4 moderne Häuser mit gesamt 670 m2 Wohnfläche, Gärten und 8 Stellplätzen.

Flächenauftstellung:

Top 1: 154,92 m2
Top 2: 180,51 m2
Top 3: 175,90 m2
Top 4: 158,19 m2

Gesamt: 669,52 m2

für weiter Fragen und Informationen stehe ich Ihnen gerne jederzeit zur Verfügung.

mfg Julian Obertscheider

Grundrisse

Lageplan

Inhalt wird geladen
Preise
Kaufpreis
650.000,00 €
Kaufpreis/m²
851,90 €
Provision
3% des Kaufpreises zzgl. 20% USt
Fakten
Objekttyp
Grundstück
Grundfläche
763 m²
Baujahr
2025
Zustand
Erstbezug
Status
verfügbar
Julian Obertscheider

Friends Immobilien GmbH

Julian Obertscheider

Immobilienberater